ESTETIC 200

ציר סמוי אוניברסלי לחלוטין מתאים לדלתות שמאליות וימניות

*בעל כושר נשיאה של 200 ק"ג עבור זוג צירים

* במקרה של סוגר דלת אוטומטי מומלץ:

– להגדיל את כושר הנשיאה ב-70% בעת שימוש במגביל מהירות סגירה אוטומטי

– להגדיל את כושר הנשיאה ב-30% בעת שימוש בסוגר דלת ללא מגביל מהירות סגירה אוטומטי

*מיועד לשימוש בפרופילי עץ, פלדה ואלומיניום.

*מיועד לדלתות חופפות ומקבילות.

*מיסב ללא צורך שימון וללא לכלוך לאורך זמן

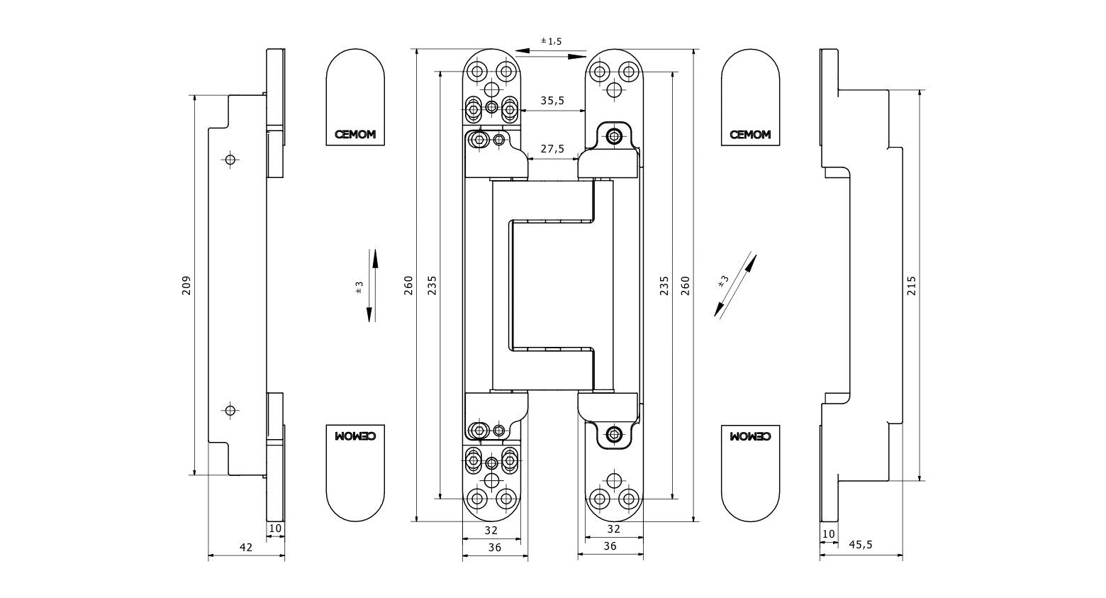
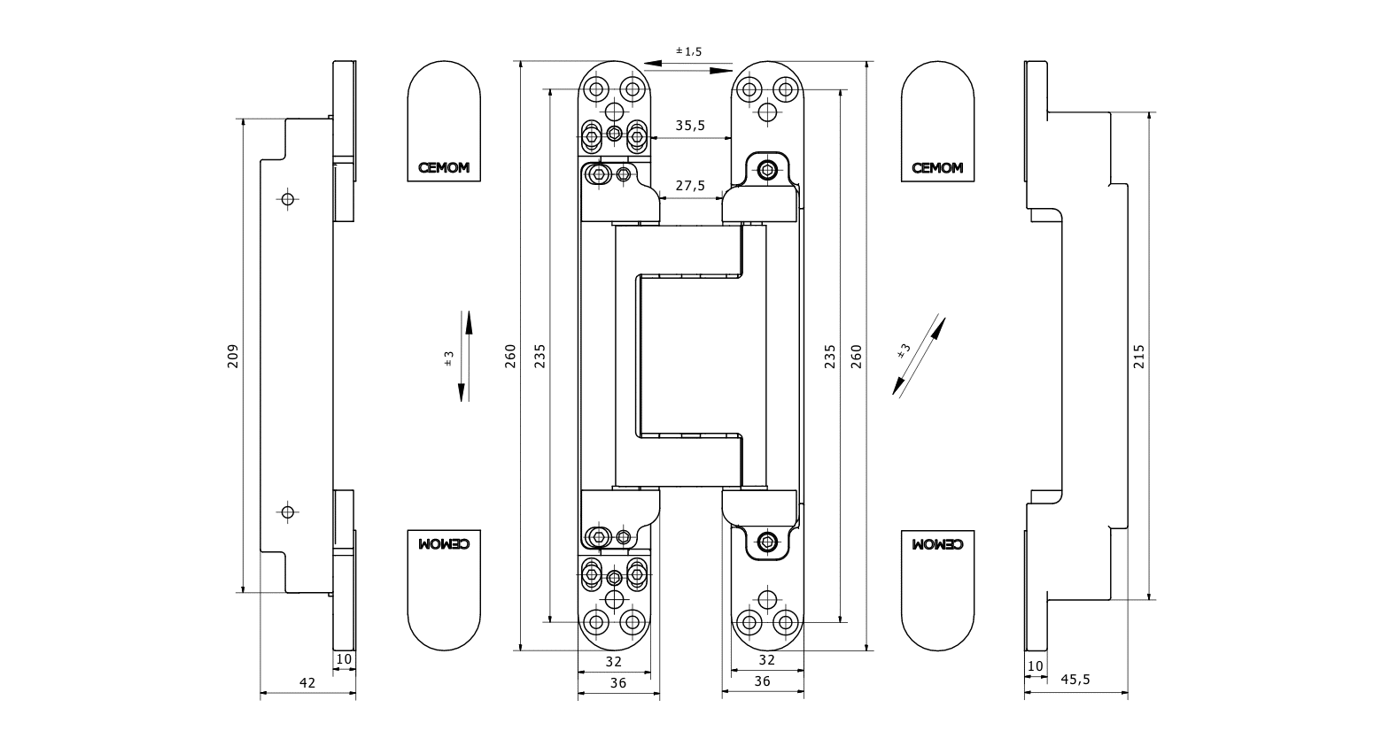
*כיוונון מכני תלת-ממדי בעזרת מפתח אלן

*צידוד צד +/-2 מ"מ  (ימין/שמאל)

*צידוד גובה +/- 2 מ"מ {למעלה /למטה)

*צידוד פנימה/החוצה (לחץ על הגומי או הנעילה +/- 1 מ"מ)

*כיסויים מגנטים קשיחים ומהודרים

*מאפשר זווית פתיחה של 180°

* איורים וגימורים דומים

שרטוט טכני

מפתח סיווג

מכוסה על ידי הערכה טכנית אירופאית ETA-23/0190, סיווג לפי EN 1935 ו-EAD 020001-01-0405:

4

7

7

1

1

-*

0

14

* עמידות בפני קורוזיה בהתאם לגימור

מוצרים קשורים

H 634-00-00

Ebp705-0

D 901-00-00

D 725-00-00 AF-P

D 725-00-00 AC-P

D 695-00-00 L

D 695-00-00 K

D 674-00-00 Z

D 674-00-00 L3

D 513-00-00 E3